1-к, Пушкино, 21 Показать на карте
Пушкино
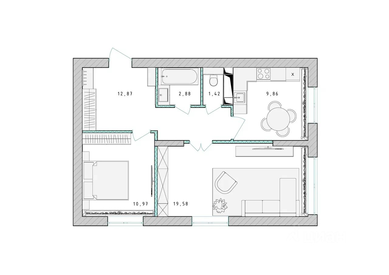
Продается 1-комн. кв-ра площадью 34,2 кв.м на 4 этаже 15 этажного дома в ЖК ''Новое Пушкино'' от компании ГК ''Инград''. Расположение и транспорт Современный жилой квартал ''Новое Пушкино'' возводится в живописной части города Пушкино, рядом с Тишковским и Мученским лесопарками, Правдинским и Пушкинским лесничествами, рекой Учей и Учинским водохранилищем (водохранилище в 3 км).Жилой квартал находится в 21 км от МКАД по Ярославскому шоссе. На территории квартала имеются остановки общественного транспорта, в 1,5 км находится станция ''Заветы Ильича'' и в 2 км станция ''Пушкино'' Ярославского направления железной дороги. Путь до Москвы на автомобиле по Ярославскому шоссе занимает 20 минут, на электричке 40 минут. В 2025-26 гг. планируется открытие станции МЦД Пушкино.Инфраструктура Комплексное развитие территории проекта ''Новое Пушкино'' предполагает, одновременно с возведением жилых домов, строительство полной собственной инфраструктуры, которая будет включать в себя: 3 школы общей емкостью 2 650 мест (в 2018 году открылась новая муниципальная школа), 3 детских сада общей емкостью 740 мест (один детский сад на 230 мест построен и работает, в 2023г. планируется открытие еще одного), многофункциональный торгово-развлекательный центр, медико-диагностический комплекс с поликлиникой на 425 посещений в смену, дневным стационаром и подстанцией скорой медицинской помощи, физкультурно-оздоровительный комплекс, православный храм.На первых этажах корпусов сформирована коммерческая инфраструктура: магазины, салоны красоты и парикмахерские, аптеки, бутик цветов, фермерская лавка, кафе, рестораны, суши-бар, пекарня, детские развивающие центры.Прогулочные аллеи, велосипедные дорожки, спортивные и игровые площадки, зоны активности и творчества, места отдыха и добрососедского общения. Центральным элементом благоустройства квартала станет уютный пешеходный бульвар протяженностью 500 метров. Архитектура Архитектурно ''Новое Пушкино'' представляет собой ансамбль из монолитных домов в шоколадно-бежевой гамме с лаконичными вкраплениями терракотового оттенка. В домах предусмотрена повышенная шумо- и теплоизоляция, застекленные лоджии и угловое остекление. В новых домах будет использован вентилируемый фасад с применением керамогранитной облицовочной плитки. Подъезды спроектированы в уровень с землёй, входные группы оборудованы витражными окнами и светлыми холлами. В каждой жилой секции обустроены колясочные. Надежность застройщикаПАО ''ИНГРАД'' — одна из крупнейших строительных компаний Москвы, которая с 2012 года строит жилые кварталы комфорт, бизнес и премиум-класса, объекты коммерческой, социальной и спортивной инфраструктуры. Группа компаний построила 20 жилых комплексов с собственной социальной инфраструктурой и коммерческими помещениями. В настоящее время группа компаний ''Инград'' на различных стадиях ведет реализацию 8 проектов в Москве и Московской области.В проектах ''Инград'' живут 31 500 семей, 1500 детей ходят в собственные сады и 4000 — в школы, построенные
34 м2
4 / 15 этаж
Монолит
- Показать контакты
- Добавить в избранное
34 м2
4 / 15 этаж
Монолит
6 974 468
203 932 /м2
Новостройка,
дом сдан
дом сдан
