Дом, проспект Ильича, 27 Показать на карте
Пушкино
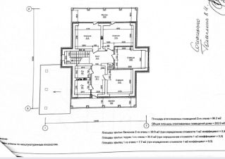
Два дома для дружной семьи в окружении вековых сосен на участке 25,3 сот.Вы должны это видеть, гарантирую, что вы не останетесь равнодушны. Если вы не купите, то захотите порекомендовать купить его своим знакомым, чтобы приезжать к ним в гости.На участке расположены:I. Основной дом 157,3 кв.м распланирован так, что для четверых членов семьи будет свой уголок для комфортного времяпровождения:на первом этаже - кухня 8 кв.м два окна, гостиная 23,2 кв.м с рабочим камином, спальня два окна, кабинет/спальня 14 кв.м, совмещенный санузел 7 кв.мна втором этаже - спальня 23 кв.м, кабинет/комната отдыха 10 кв.м с тремя панорамными окнами, гостиная/библиотека 23 кв.м, второй кабинет 10,2 кв.м с тремя окнамиII. Гостевой дом/дом для родителей (дедушки, бабушки) 73,9 кв.м:на первом этаже - спальня 15 кв.м, кухня гостиная 19 кв.м, раздельный санузел 7 кв.м и 3 кв.мна мансардном этаже комната может быть кабинетом, или спальней для внуковIII. Если вам после после умственной работы нужно отвлечься есть отдельное здание- мастерская, можно переделать под банюIV. Мангальная зона с дровницей и шкафами для инвентаря.Площадка с навесом для автомобиля и застекленной помещение куда можно поставить второй автомобиль или как игровая комнат для детей в дождевую погоду, дети рады будут играть вне дома и в то же время в тепле.Коммуникации:магистральный газ,газовое отопление в двух домах,центральная водасептик не требующий откачкиЗвоните узнать подробности и конечно посмотреть этот действительно особенный участок
157 м2
2 этажа
Дерево
- Показать контакты
- Добавить в избранное
157 м2
2 этажа
Дерево
35 000 000
222 505 /м2
