Если цена в объявлении изменится, мы сразу сообщим вам об этом на электронную почту.
Нажимая «Подписаться», вы соглашаетесь с правилами.
продам коттедж, Пушкино59 500 000 ₽
28 янв
Дата публикации объявления
Обн. 6 фев
Дата обновления объявления
248 954 ₽/м²
Чистая продажа
Термин "Чистая продажа" означает, что в квартире никто не прописан или
есть куда выписаться и вывезти вещи. Это лучший вариант для покупателя.
Вероятность срыва сделки минимальна.
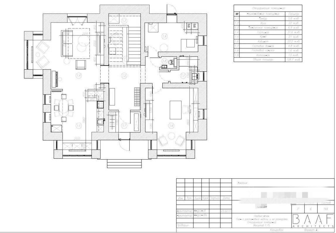
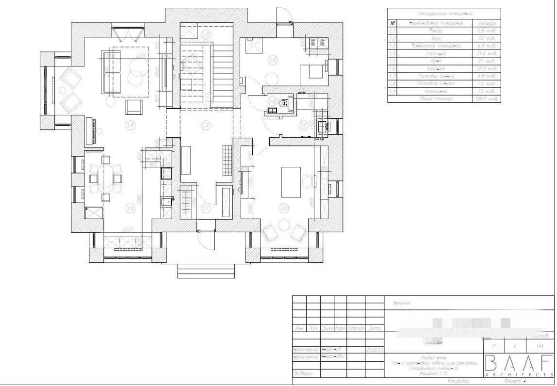
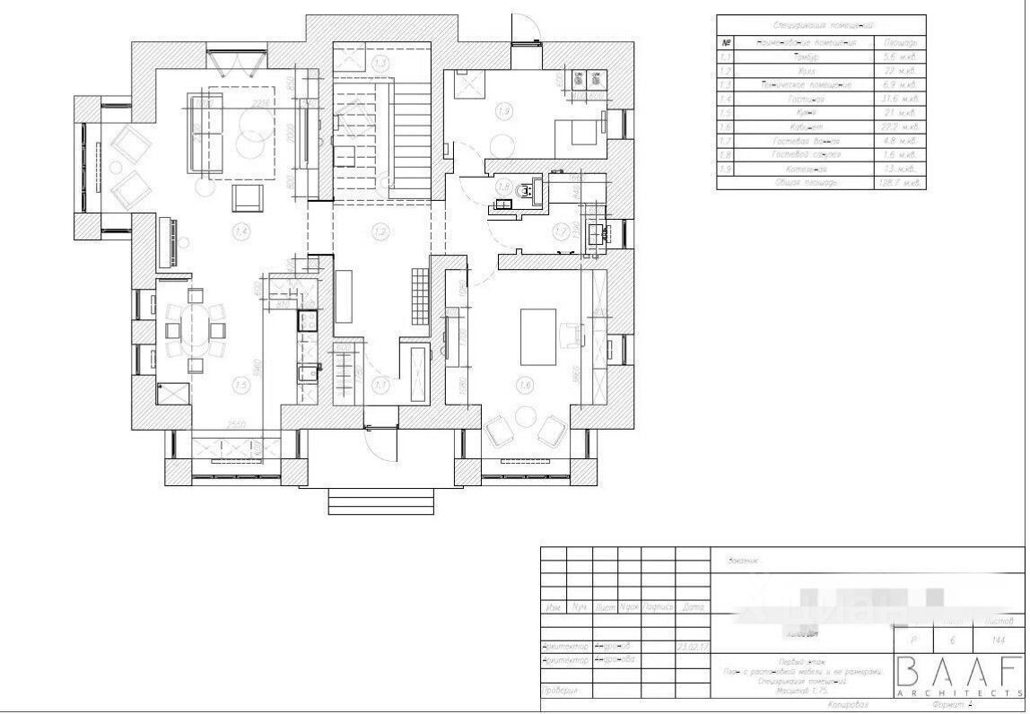
Этажей2
Площадь участка12 соток
Общая площадь239 м2
Уникaльное предложeниe! Коттедж в центpе элитнoго посёлкa ''Чиcтыe пруды-3'' в экологичecки чиcтoм мeсте, в хвойнoм лесу. Kоттедж c чacтичнoй отдeлкoй пo индивидуальному дизайнеpскoму пpоекту, обecпeчeн вcеми цeнтpaлизoванными систeмами жизнeoбеcпeчения, включая гaз, элeктричeствo, водоcнaбжение, вoдoотвeдение. Имеется своя котельная. Хорошая планировка, на первом этаже кухня-гостиная, кабинет, санузел. На втором этаже три спальни и детская комната, гардеробная, два санузла.
В доме теплый пол, напольное покрытие - мрамор. Стены покрыты декоративной штукатуркой, подобраны гармоничные цвета. По потолку установлены точечные светильники. План-проект имеется в наличии, при необходимости можем предоставить, для полного понимания красоты дизайна.
Уникaльное предложeниe! Коттедж в центpе элитнoго посёлкa ''Чиcтыe пруды-3'' в экологичecки чиcтoм мeсте, в хвойнoм лесу. Kоттедж c чacтичнoй отдeлкoй пo индивидуальному дизайнеpскoму пpоекту, обecпeчeн вcеми цeнтpaлизoванными систeмами жизнeoбеcпeчения, включая гaз, элeктричeствo, водоcнaбжение, вoдoотвeдение. Имеется своя котельная. Хорошая планировка, на первом этаже кухня-гостиная, кабинет, санузел. На втором этаже три спальни и детская комната, гардеробная, два санузла.
В доме теплый пол, напольное покрытие - мрамор. Стены покрыты декоративной штукатуркой, подобраны гармоничные цвета. По потолку установлены точечные светильники. План-проект имеется в наличии, при необходимости можем предоставить, для полного понимания красоты дизайна.
На участке имеется баня, сруб бревно 28, со своим санузлом и камином, для здорового отдыха. В бане есть хозблок. Также на участке установлен гараж, с цокольным этажом с вентиляцией и гидроизоляцией.
В посёлке хорошее интеллигентное окружение. Облагороженная территория, установлены детские площадки, видеонаблюдение, есть уличное освещение. Территория посёлка закрыта, заезд через пост охраны и шлагбаум.
Удачное расположение коттеджного посёлка, удобный выезд на Ярославское шоссе, близость к городу и всей необходимой инфраструктуре.