В избранном
В избранное
Пожаловаться
Напечатать
Следить за ценой

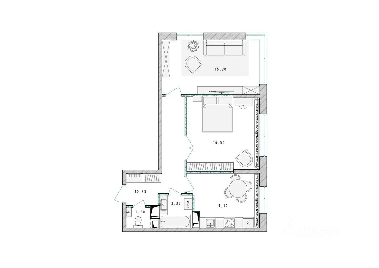
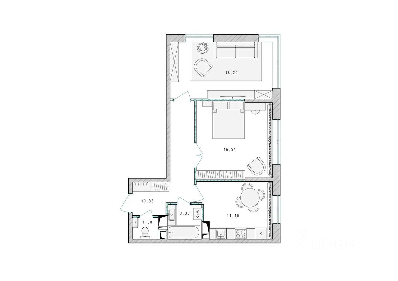
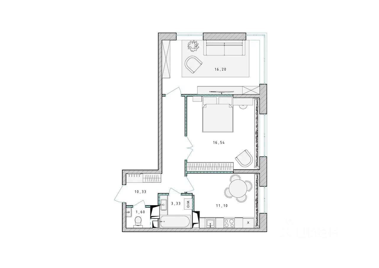
продам 2-к, Ярославское шоссе, 194 корп. 18 810 208 ₽

1 ноя
Обн. 12 мая
4
148 320 ₽/м²
  • Чистая продажа