Продается уютная 3-комнатная квартира в экологически чистом районе ближнего Подмосковья. Пушкино, Первомайская, д.12. Мебель остаётся по договорённости.
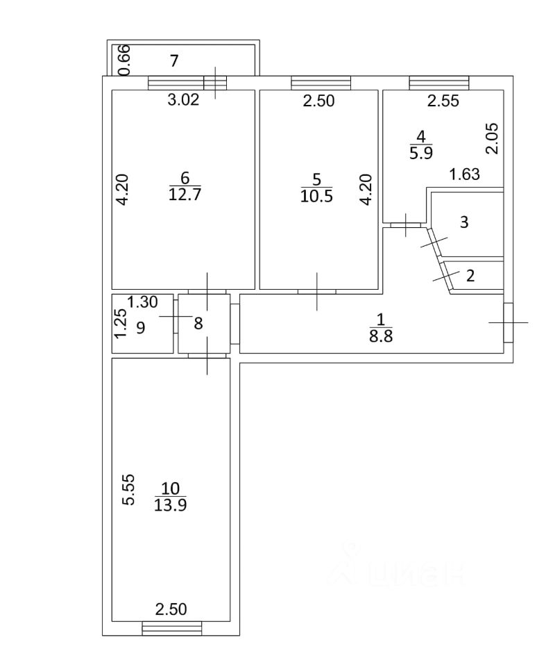
Удачная планировка. Распашонка (окна на две стороны), все комнаты изолированы, с застекленным балконом. Установлена современная газовая колонка автомат. На кухне есть ''зимний холодильник''. Санузел раздельный, что обеспечивает дополнительное удобство. Теплый, кирпичный дом был построен в 1970 году и выполнен из качественного кирпича. Во дворе есть наземная парковка, поэтому можно не беспокоиться о месте для автомобиля. В прошлом году произведен капитальный ремонт крыши.
Рядом школа, детский сад, магазины. В шаговой доступности лесной массив, река Уча.
Продается уютная 3-комнатная квартира в экологически чистом районе ближнего Подмосковья. Пушкино, Первомайская, д.12. Мебель остаётся по договорённости.
Удачная планировка. Распашонка (окна на две стороны), все комнаты изолированы, с застекленным балконом. Установлена современная газовая колонка автомат. На кухне есть ''зимний холодильник''. Санузел раздельный, что обеспечивает дополнительное удобство. Теплый, кирпичный дом был построен в 1970 году и выполнен из качественного кирпича. Во дворе есть наземная парковка, поэтому можно не беспокоиться о месте для автомобиля. В прошлом году произведен капитальный ремонт крыши.
Рядом школа, детский сад, магазины. В шаговой доступности лесной массив, река Уча. До ж/д станции Пушкино и автостанции Пушкино 10 минут пешком. Подходит под ипотеку. Квартира в собственности одной семьи с момента постройки дома. 1 взрослый собственник (приватизация 2005 года). Свободная продажа по полной стоимости. Без обременений.
Приглашаем Вас на просмотр, чтобы лично оценить все преимущества этой квартиры. Звоните и записывайтесь на удобное для вас время!