В избранном
В избранное
Пожаловаться
Напечатать
Следить за ценой

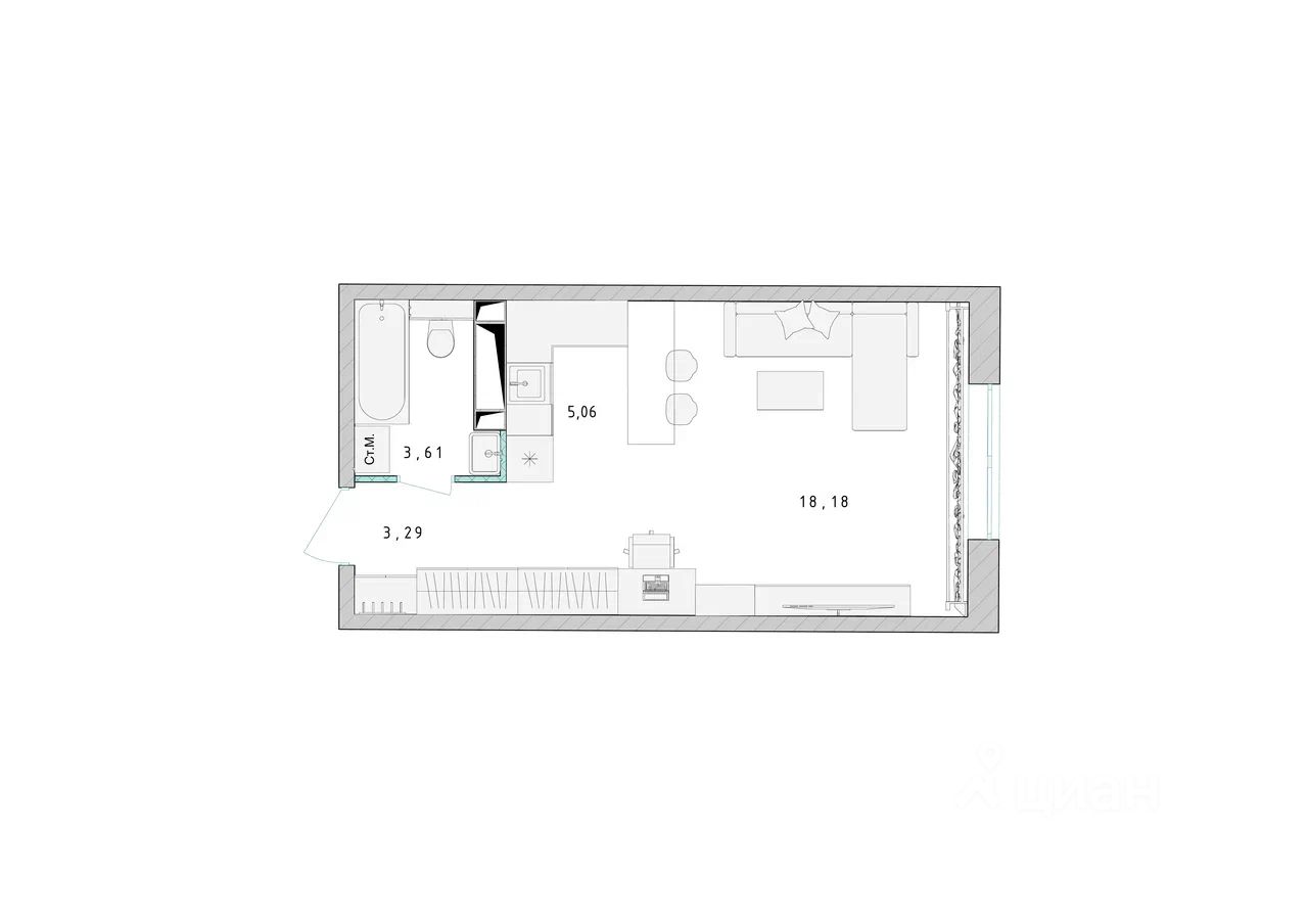
продам 1-к, Ярославское шоссе, 1945 025 255 ₽

26 мая 2025
Обн. 28 апр
165 850 ₽/м²
  • Чистая продажа