Если цена в объявлении изменится, мы сразу сообщим вам об этом на электронную почту.
Нажимая «Подписаться», вы соглашаетесь с правилами.
продам 3-к, Ярославское шоссе, 1947 750 000 ₽
26 мая 2025
Дата публикации объявления
Обн. 12 мая
Дата обновления объявления
2
Количество просмотров (+ просмотры за сегодня)
Спецпредложение
Турбо x8
100 000 ₽/м²
Чистая продажа
Термин "Чистая продажа" означает, что в квартире никто не прописан или
есть куда выписаться и вывезти вещи. Это лучший вариант для покупателя.
Вероятность срыва сделки минимальна.
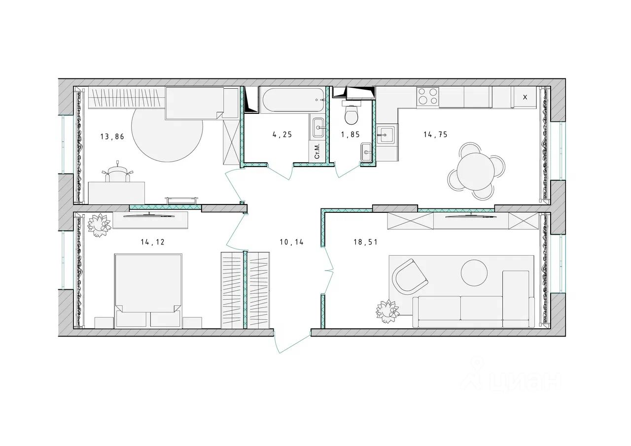
Продаётся 3-комнатная квартира в сданном доме (Корпус 1), срок сдачи: 4-кв. 2023, общей площадью 77.50 кв.м., на 7 этаже.
Этот современный жилой комплекс сочетает в себе комфорт, природу и близость к городской инфраструктуре. ЖК ''Серебро'' - готовые квартиры без отделки в 15 минутах от МКАД.
Главные плюсы проекта - удобное расположение, разнообразные планировки и особенный подход к благоустройству. Рядом с домами есть детские площадки, workout зоны и прогулочные аллеи.
Расположенный вблизи Ярославского шоссе и окруженный природными красотами, ЖК ''Серебро'' идеально подходит для тех, кто ценит гармонию между городской жизнью и спокойствием природы.
Продаётся 3-комнатная квартира в сданном доме (Корпус 1), срок сдачи: 4-кв. 2023, общей площадью 77.50 кв.м., на 7 этаже.
Этот современный жилой комплекс сочетает в себе комфорт, природу и близость к городской инфраструктуре. ЖК ''Серебро'' - готовые квартиры без отделки в 15 минутах от МКАД.
Главные плюсы проекта - удобное расположение, разнообразные планировки и особенный подход к благоустройству. Рядом с домами есть детские площадки, workout зоны и прогулочные аллеи.
Расположенный вблизи Ярославского шоссе и окруженный природными красотами, ЖК ''Серебро'' идеально подходит для тех, кто ценит гармонию между городской жизнью и спокойствием природы. Находится на пересечении Ярославского и Красноармейского шоссе, с удобными выездами для ежедневных поездок как на автомобиле, так и на общественном транспорте или каршеринге.
На территории ЖК есть все для комфортной жизни. На первых этажах - коммерция, которая позволит покупать продукты или необходимые товары для дома, не покидая жилой комплекс. Около первого корпуса есть большой плоскостной паркинг, где удобно оставить автомобиль жильцам и гостям комплекса. Во дворах - места для игр, прогулок и отдыха. Для детей на территории проекта много безопасных детский площадок.
ЖК ''Серебро'' расположен вблизи берега реки Серебрянка и окружён зелёными зонами. Вы сможете наслаждаться прогулками по набережной, отдыхом в Дендропарке, расположенном в 10 минутах от ЖК площадью 13 Га.
ЖК ''Серебро'' окружен всеми необходимыми объектами городской инфраструктуры, рядом с домами расположены торговые и развлекательные центры, образовательные учреждения и медицинские клиники.