В избранном
В избранное
Пожаловаться
Напечатать
Следить за ценой

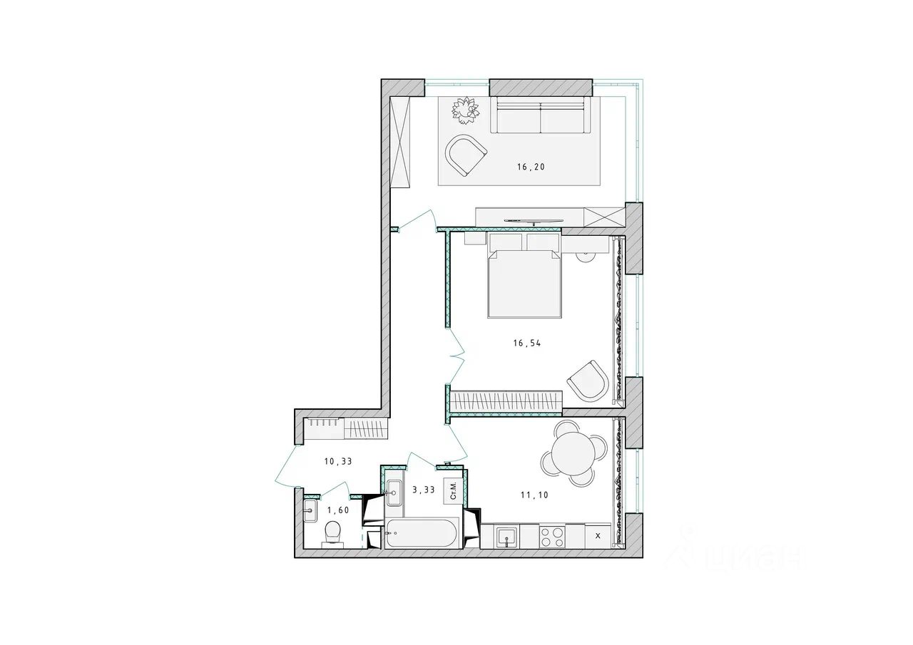
продам 2-к, Ярославское шоссе, 194 корп. 18 084 068 ₽

26 мая 2025
Обн. 11 мая
136 555 ₽/м²
  • Чистая продажа