!!! ПОД АВАНСОМ ДО 27.01.2025!!!
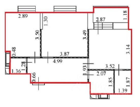
Продается 2-х комнатная квартира с очень удобной планировкой, на 10-м этаже 15-ти этажном доме. Общей площадью 52 кв.м., кухня 10 кв.м., жилая ( 13,5 + 11) кв.м., 2-ва СУ, кладовая 3,5 кв.м., большой холл 10 кв.м., лоджия из комнаты. Окна во двор. Квартира с ремонтом. Один взрослый собственник, прямая продажа.




















